Архитектурно-строительный проект
Архитектурно-строительный проект (АС)— это документ контроля за архитектурным и строительным качеством, а также за расходом конструктивных и отделочных материалов. Данный проект позволяет полностью вводить в эксплуатацию дом (получить разрешение на строительство и согласование в районном БТИ, согласование на проведение электричества и газа).
При покупке проекта дома у нас Вы приобретаете:
- Паспорт проекта. (Лицензия для ввода дома в эксплуатацию)
- Архитектурно-строительный раздел.
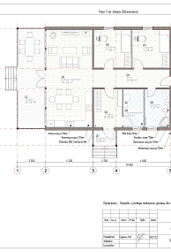
Архитектурный раздел (АР):
|
|
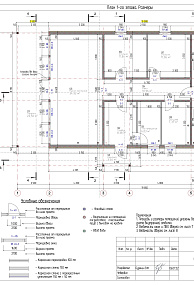
Конструктивный раздел (КР):
|
|
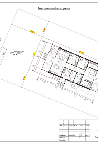
Архитектурно-строительный раздел включает в себя не только фасады, но и подробные чертежи с указаниями размеров и параметрами материалов. Мы предоставляем гарантии разработчика на соответствие проекта действующим строительными нормам и правилам.
Индивидуальный проект дома БЕСПЛАТНО при заключении договора-подряда на строительство данного дома.Вернуться в раздел «Проектирование»
Заказать услуги проектирования
Нажимая на кнопку, Вы соглашаетесь с обработкой своих данных
Наши видеоролики Смотреть все (178)
Видеоотзывы Смотреть все (176)
Тип дома
ЭТАЖНОСТЬ
ОСОБЕННОСТИ
- В стиле фахверк
- В стиле шале
- С балконом
- С гаражом
- С мансардой
- С панорамными окнами
- С террасой
- С эркером
- В стиле прованс
- В стиле модерн
- В английском стиле
- В американском стиле
- С 2 спальнями
- С 3 спальнями
- С 4 спальнями
- Со вторым цветом
- С котельной
- С плоской крышей
- С двускатной крышей
- С ломаной крышей
- С вальмовой крышей
- В канадском стиле
- В классическом стиле
- В современном стиле
- В финском стиле
